SOLD 59 Donald Street HURSTVILLE
SOLD BY CHRISTIAN LAGAREZ
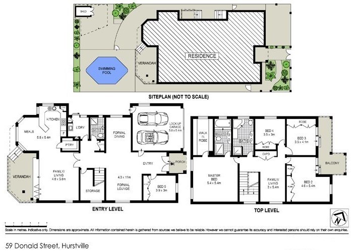
An exceptionally rare opportunity is available to make this original, architecturally designed home yours. Occupying a commanding street position on just over 501sqm of land.
This timeless home is built by an award-winning builder with no detail spared in the design or construction. An elegant, meticulously maintained, light-filled two stories beautifully presented and perfect for a family residence.
Desirable features include:
- High ceilings and architecturally designed western cedar windows allowing plenty of natural light throughout the property
- 5 spacious bedrooms all with built-in wardrobes
- The prominent large master bedroom features an equally large walk-in wardrobe and en-suite
- Open plan living and dining area, plus upstairs rumpus room
- Contemporary Caesar Stone kitchen with Ilve and Bosch appliances
- Formal lounge and dining room
- An entertainers dream home with bifold doors leading out to a fully landscaped and paved rear yard in a sunny position
- Above ground pool with glass balustrading
- Significant storage throughout the home
- Extra wide Blackbutt timber staircase
- Ducted air conditioning
- Ducted vacuum
- Gas hot water and heating
- Convenient laundry chute from the main bathroom
- Double garage featuring internal and external access
- Back to base alarm system
- Built by the present owner in 2002 with an exceptionally high attention to detail and build quality






